Skip To Content

0 W Avenue D-12

Lancaster, CA 93536
  • $12,000
  • STATUS: Closed
  • ON SITE: 393 Days
  • ID#: SW25034378
Sold - 10/31/2025
$12,000
SOLD - 10/31/2025
  • 0
    BEDS
  • 5.08
    ACRES
  • 0
    BATHS
  • 0
    1/2 BATHS
Neighborhood:
Type:
Vacant Land / Lots
County:

School Ratings & Info

Listing Agent(s): Steve Welty of Steve Welty & Associates Inc (760-773-5538)


Description

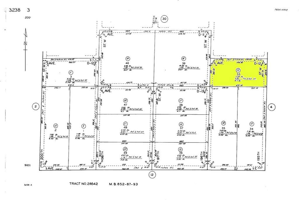
This 5.08-acre flat lot on W Avenue D-12, Lancaster, CA 93536 (APN: 3238-003-012) offers a peaceful desert rural setting with plenty of space for development, recreation, or investment. Surrounded by open landscapes and stunning desert views, this property provides a perfect opportunity for those seeking privacy and wide-open spaces while still being within reach of Lancasters amenities. This expansive lot offers endless possibilities in the heart of Southern Californias High Desert!****No soils reports, surveys, etc., have been done. Buyer and buyer's agent to verify all information with the city or county for allowable uses and requirements and rely on their own investigations. **Buyer responsible for checking zoning, utilities, permits and exact property boundaries. ****

Sold by General Nonmember of NONMEMBER MRML.

Monthly Payment Calculator



Based on information from California Regional Multiple Listing Service, Inc. as of 2026-03-16T13:31:32.077. This information is for your personal, non-commercial use and may not be used for any purpose other than to identify prospective properties you may be interested in purchasing. Display of MLS data is deemed reliable but is not guaranteed accurate by the MLS or Kohler Real Estate Group | Zutila. Licensed in the State of California, USA.
www.buysocal.homes/homes/160571671
Print Image

0 W Avenue D-12 Lancaster, CA 93536

  • Price: $12,000
  • Status: Closed
  • On Site: 393 Days
  • Updated: 74 min ago
  • ID#: SW25034378
0
Beds
0
Baths
0
½ Baths
5.08
Acres
Neighborhood:
LAC - Lancaster
County:
Los Angeles
Area:
LAC - Lancaster
Property Description
This 5.08-acre flat lot on W Avenue D-12, Lancaster, CA 93536 (APN: 3238-003-012) offers a peaceful desert rural setting with plenty of space for development, recreation, or investment. Surrounded by open landscapes and stunning desert views, this property provides a perfect opportunity for those seeking privacy and wide-open spaces while still being within reach of Lancasters amenities. This expansive lot offers endless possibilities in the heart of Southern Californias High Desert!****No soils reports, surveys, etc., have been done. Buyer and buyer's agent to verify all information with the city or county for allowable uses and requirements and rely on their own investigations. **Buyer responsible for checking zoning, utilities, permits and exact property boundaries. ****
Exterior Features

Fencing None Lot Features Rectangular Lot Sign On Property YN No View Desert View YN Yes

Property Features

Additional Parcels YN No Association Fee 0 Association YN No Buyer Financing Cash Common Interest None Community Features Rural Land Lease YN No Listing Agreement Exclusive Right To Sell Listing Service Full Service Listing Terms Cash New Construction YN No Senior Community YN No Special Listing Conditions Standard Utilities None Water Source See Remarks Zoning LCA12*



Based on information from California Regional Multiple Listing Service, Inc. as of 2026-03-16T13:31:32.077. This information is for your personal, non-commercial use and may not be used for any purpose other than to identify prospective properties you may be interested in purchasing. Display of MLS data is deemed reliable but is not guaranteed accurate by the MLS or Kohler Real Estate Group | Zutila. Licensed in the State of California, USA.
 
Logo
Kohler Real Estate Group | Zutila
4000 Barranca Pkwy #105
Irvine CA, 92604
Listing Agent(s): Steve Welty of Steve Welty & Associates Inc (760-773-5538)